Privato/Nuova casa unifamigliare
Martinelli + Rossi architetti firmano il progetto di una nuova casa unifamigliare a Cugnasco
Committente
Famiglia privata
Famiglia privata
Oggetto
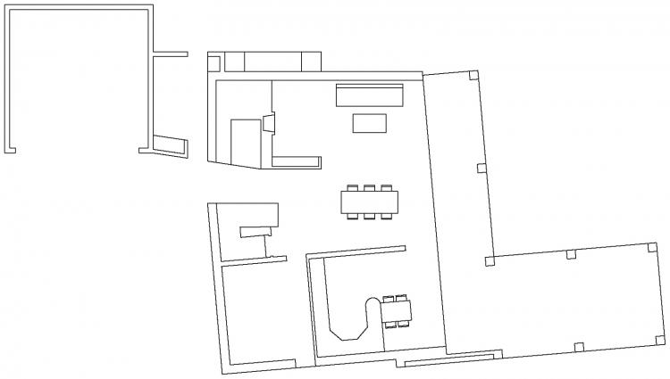
Nuova casa unifamigliare
Nuova casa unifamigliare
Luogo
6515 Cugnasco
6515 Cugnasco
Incarico
Progetto e disegni esecutivi
Progetto e disegni esecutivi
Capo progetto
M + R
M + R
Anno
2003
2003
VSIA 416
1160m²
1160m²
Cod. Rif.
06 - DC
06 - DC